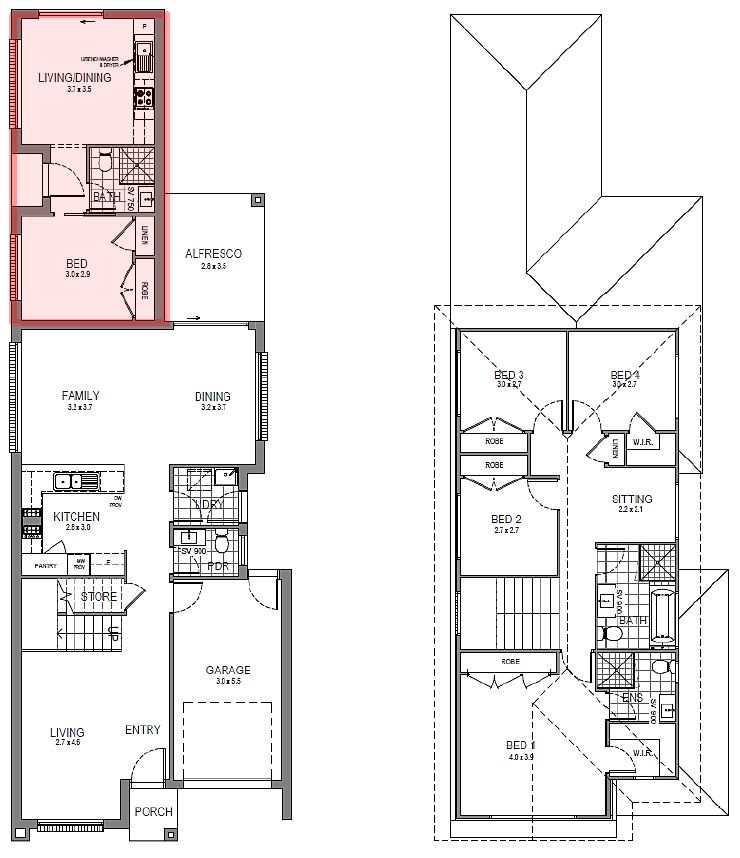
Dual Living Opportunity - 4 Bed Home + 1 Bed Granny Flat! Live In One, Rent the Other!

9 Old Blush Street COBBITTY NSW 2570

Discover the perfect blend of lifestyle and investment in this thoughtfully designed double storey 4-bedroom home with an attached 1-bedroom granny flat. Whether you're looking to accommodate extended family or generate rental income, this versatile property delivers on space, style, and value.

Situated in a vibrant, growing community that balances a charming country feel with modern city convenience, this home offers everything you need to enjoy the good life - and then some.

Main Dwelling Features:
• Spacious 4 bedrooms over two levels
• High 2585mm ceilings to the ground floor for a grand sense of space
• Reverse cycle ducted air-conditioning for year-round comfort
• Stylish tiles to living areas, with soft carpet to bedrooms and upper level
• Gourmet kitchen with 20mm engineered stone benchtops
• 900mm freestanding cooker & canopy rangehood
• Sleek sheen-finish cabinetry
• Luxurious bathrooms featuring semi wall-hung vanities, engineered stone tops, and modern fixtures
• Alarm system with 4 sensors for peace of mind
• Auto garage door opener and double power points throughout
• Vertical blinds, coloured concrete driveway, and more

Attached 1-Bedroom Granny Flat:
• Perfect for rental income, guests, or multigenerational living
• Private entry and full amenities

Additional Inclusions:
• Corebuild system with 180-day maintenance period - double the industry standard
• Site costs & Basix included
• Stylish perimeter-framed shower screens with frameless pivot doors
• Flick mixer taps, exhaust fans, and closed coupled vitreous china toilet suites

A little bit country. A little bit city. A lot like the home you always dreamed of.

This is your chance to secure a home and income in a new master planned community steeped in charm and rich in potential. Whether you're a first-home buyer, savvy investor, or multigenerational family - this opportunity is not to be missed.

For Champions of the Good Life - your future starts here.

For more details or to arrange an inspection, contact us now.

Contact one of our friendly team members today Mohit Gupta on 0449 983 303 or Saruar Hossain on 0401 349 150 to make this exceptional property your own.

Disclaimer: Multi Dynamic believes that all information contained herein to be true and correct to the best of our ability and in no way misleading, however, all interested parties are advised to carry out their own enquiries and relevant searches. Images are for illustration purposes only.
Read more

Property details

  • 5
  • 3
  • $1,289,500
  • squareMeter m2

features

floor plan

inspections

20-Dec-2025 11:00am to 11:30am

Dual Living Opportunity - 4 Bed Home + 1 Bed Granny Flat! Live In One, Rent the Other!