6-Months Fixed Price Opportunity!

Lot 7503 Sharples Circuit ORAN PARK NSW 2570

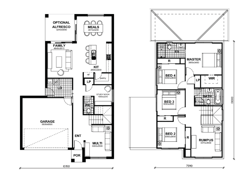
Step into the ultimate family home where style, comfort, and functionality come together seamlessly across two spacious levels. This beautifully designed property offers multiple living zones, making it the perfect haven for a growing family.

Step inside and enjoy contemporary living at its best, with a thoughtful layout, premium finishes, and all the comforts you deserve.

Highlights:
• Fixed Price for 6 Months - peace of mind while you build
• Modern inclusions package - no hidden costs
• Ducted Actron Classic air conditioning for year-round comfort
• 20mm engineered stone benchtops to kitchen and vanities
• 900mm Westinghouse cooktop and oven - perfect for home chefs
• 2590mm ceiling height on the ground floor for added space and light
• Tiles to main living areas, study nook, alfresco, and porch
• Soft carpets to bedrooms, rumpus, and multi-purpose rooms
• Mirror sliding wardrobes and flyscreens to all windows
• 50 LED downlights and blinds included throughout
• Insulation to walls and roof sarking for energy efficiency
• Site costs and 7-Star BASIX rating included
• 'Coloured On' concrete driveway 
• Land size: 362m²
• Land registration: Mid 2026

This home effortlessly combines spaciousness with modern design elements, offering a lifestyle of convenience and comfort. With so many flexible spaces, you'll have the room you need for today's busy family life, while still maintaining a sense of style and luxury.

Don't miss your chance to secure this fantastic family-friendly property!
>Location Highlights 
•  Moments to Oran Park Podium shopping centre, schools, parks, and public transport
•  Close to playgrounds, sporting fields, and the future Oran Park train station
•  Easy access to Camden Valley Way and the M5/M7 motorways

For inspections or more details, contact our friendly team member Mohit on 0449 983 303 today.

Disclaimer: Multi Dynamic Ingleburn believes that all information contained herein is true and correct to the best of our ability and in no way misleading, however, all interested parties are advised to carry out their own enquiries and relevant searches. Please be advised that colours, specifications, and details may vary slightly from what is shown. We recommend confirming all product information before purchase. Photos are for illustrative purposes only.
Read more

Property details

  • 4
  • 2
  • $1,203,300.00
  • -- m2

features

floor plan

inspections

02-Aug-2025 02:00pm to 02:30pm 26-Jul-2025 02:00pm to 02:30pm

6-Months Fixed Price Opportunity!